Machbarkeitsstudie für drei Schulstandorte in Lünen-Süd
Erstellen einer Machbarkeitsstudie
Auftraggeber:
Stadtplanungsamt Stadt Lünen
Leistungszeitraum:
2017-2018
Leistungsphasen:
1-2
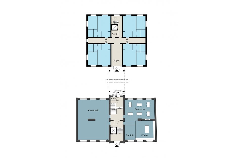
Mit Hilfe von Städtebaufördermitteln soll der Stadtteil Lünen-Süd gestärkt werden. Die Standorte von drei ehemaligen Schulen wurden im Handlungskonzept als derzeit untergenutzte Flächen mit Potential eingeordnet.
In der Standortanalyse wurden die städtebaulichen und architektonisch-bautechnischen Stärken und Schwächen der drei Liegenschaften analysiert. Neben Aussagen zum baukulturellen Wert wurden Angaben zur Gebäudesubstanz sowie zu potenziellen Mietflächen und -höhen erarbeitet. In der Bedarfsanalyse sind Nutzungsbedarfe identifiziert und mit relevanten Akteuren im Stadtteil diskutiert worden.
Schließlich wurden Nachnutzungskonzepte jeweils vom Worst-Case-Szenario bis zum Best-Case Szenario mit Kosten für die Investitionen und den laufenden Betrieb dargestellt. Dabei ermöglichte ein modularer Aufbau der Kostenschätzung die Kombination verschiedener Maßnahmen bzw. die Schnürung sinnvoller Maßnahmenpakete.












