Wettbewerb St. Laurentius
Wettbewerb
Auftraggeber:
Kath. Kirchengemeinde St. Hippolytus
Leistungszeitraum:
2017
2. Preis
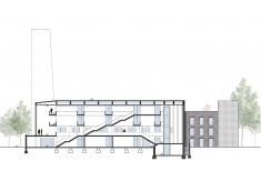
Innerhalb eines geladenen Wettbewerbes der katholischen Gemeinde St. Hippolytus konnte unser Büro mit seinem Entwurf den zweiten Platz erzielen. Gefordert war, in der zwischenzeitlich geschlossenen, denkmalgeschützten Kirche von Wilhelm Seidensticker aus den 1950er Jahren, eine verträgliche Anzahl von Wohnungen nachzuweisen. Weitere Wohnungen sollten in einem benachbarten Anbau realisiert werden. Um die baugebundene Kunst der Kirche, die sich besonders im Chor und auf der Orgelempore zeigt, besonders zur Geltung zu bringen, blieben diese Bereiche in unserem Entwurf frei von Einbauten. Verschieden hohe Lufträume und Galerien vor den Wohnungen sollten für eine räumliche Spannung sorgen und zugleich zur Wohnlichkeit für die Bewohner beitragen. Die Jury urteilte letztlich: „Dieser Entwurf spielt am stärksten mit der räumlichen Differenzierung von Allgemeinflächen, Erschließungswegen und abgeschlossenen Wohnungen. Insofern setzt sich dieser Entwurf am stärksten mit dem Denkmal auseinander“ und „der Entwurf erscheint als innovativer und mutiger Ansatz, der sich besonders intensiv mit der denkmalfachlichen Zielsetzung auseinandersetzt“.








