Machbarkeitsstudie Hölkeskampring
Neubau einer Multifunktionshalle
Auftraggeber:
Stadt Herne
Leistungszeitraum:
2020
Leistungsphasen:
1-3
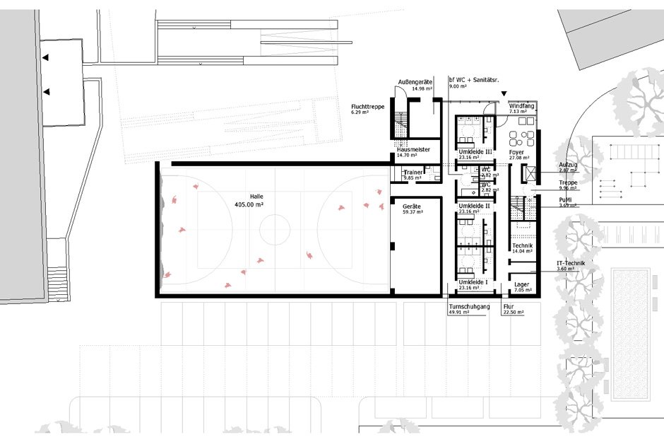
Am Hölkeskampring in Herne-Mitte befindet sich, zugänglich von der Flottmannstraße aus, eine zweigeschossige Schwimm- und Turnhalle, Baujahr 1959. Die zunächst geplante Sanierung dieser Halle mit Unterstützung von Städtebaufördermitteln war nicht wirtschaftlich darstellbar. Daher wurde entschieden, die bestehende Halle zurückzubauen und stattdessen eine neue Multifunktionshalle zu bauen, die einen ergänzenden Baustein zu dem in direkter Nachbarschaft befindlichen Stadtteilzentrum H2Ö und der Kolibrischule bildet. Kroos+Schlemper Architekten wurden damit beauftragt, eine Machbarkeitsstudie für diese Multifunktionshalle zu erstellen, in der neben einer Einfeldsporthalle mit entsprechenden Geräteräumen und sanitären Anlagen auch zwei Gymnastikräume für den Quartierssport Platz finden sollen. Im Außenbereich werden Flächen für weitere Quartierssportangebote, wie z.B. Boule, Streetball oder Calisthenics geplant.





